Recuperação de apartamento, Lisboa
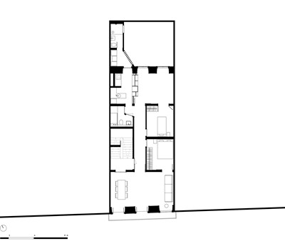
Recuperação de um apartamento abandonado de áreas reduzidas, pé direito alto e apenas uma casa de banho no exterior. O pedido era torná-lo amplo e funcional.
Foi realizada uma operação de limpeza e recuperação, tendo sido retiradas algumas paredes da casa.
O soalho de pinho e uma varanda corrida em pedra lioz foram recuperados e serviram de referencial material para o novo desenho.
A primeira parede retirada permite que a sala principal usufrua de uma maior amplitude cujo carácter se estende para o resto da casa.
A parede que dividia dois espaços de arrumações foi retirada para criar uma nova casa de banho interior. A casa de banho exterior também foi recuperada.
Por fim foi retirada a parede que dividia a biblioteca da cozinha, sendo substituída por um grande armário devidamente isolado com cortiça. De um lado os livros, do outro toda a organização de uma cozinha, incluindo frigorífico, microondas, garrafeira e armários.